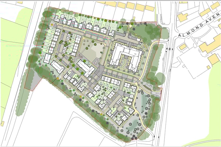
PLANS for a dementia care home and 86 homes on Woking green belt land are set to come before local councillors.
Cala Homes has applied to Woking Borough Council to build the new development off Egley Road, between Woking and Mayford.
The council has since received 70 letters objecting to the proposals, with residents worried the sprawl and spread from Woking will erode the village’s identity.
Residents say the gap between Mayford and Woking “needs to be maintained to protect identity”.
They said the plans, which include 43 affordable homes, would be out-of-character with significantly higher density than the surrounding properties, and that the 10-metre tall care home would visually dominate the area.
Previous plans to build a health club building, swimming pool and spa, together with 36 homes, were rejected as it was considered inappropriate development in the green belt.
The area has since been designated for development as part of the council’s local plan.
According to the developer, the care home “will be capable of providing care for residents of all dependency levels, including those who require residential or dementia care within a specialist unit specifically designed to cater to higher dependency needs.
“It will also be flexible in terms of layout, to enable the provision of areas where residents can be isolated, should this be necessary.”
Cala Homes says the development would provide a mix of first homes and affordable properties for both sale and rent.
There would be 32 affordable one and two-bed flats, two three-bed semi detached houses, four two-bed terraced houses, four three-bed and one four-bed terraced house.
The application will be discussed by members of Woking Borough Council’s planning committee on Tuesday, March 21.





Comments
This article has no comments yet. Be the first to leave a comment.